• От 3D модел в SketchUp през AutoLayout.pro до документация в LayOut

    AutoLayout.pro

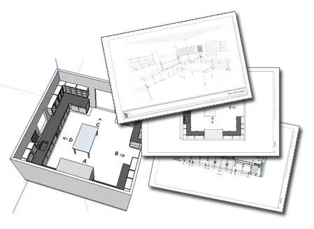
Превърни модела в документация за минути

Перфектното решение за интериорни дизайнери.архитекти.производители.проектанти.

AutoLayout.pro е практичен плъгин за SketchUp, създаден за професионалисти в интериорния дизайн, мебелното проектиране, архитектурата и инженеринга, които искат да автоматизират рутинните етапи по създаване на проектна документация.

Как AutoLayout.pro превръща 3D модела в документация

01
Създаваш модела си в SketchUp

Използваш предварително подготвен шаблон с тагове и сцени

02
Стартираш AutoLayout.pro

Плъгинът разпознава сцените, таговете, материалите и структурата на модела

03
Документацията се създава автоматично в Layout

Страници с изгледи и сечения, спецификации, количествени сметки, схеми, визуализации – всичко подредено на мястото си

6

Ключови функции

Работа със структуриран 3D модел

Стартирай от готов шаблон

Автоматично създаване на layout документация

Генерирай чертежи с едно кликване

Спецификация на мебели по индивидуален проект

Пълна документация за изработка

Спецификации по категории

Организиране по тип артикул

Изчисления на материали

Колко и къде – автоматично

Допълнителни схеми и визуализации

Подробности, които правят проекта завършен

Всичко необходимо за бърза и последователна техническа документация – директно в SketchUp
284189a8-ad29-4916-ad26-70f9f595014c
Автоматична документация

Без ръчно чертане – AutoLayout взима информация от сцените и таговете и създава пълен Layout документ.

Стандартизирана и красива визия

Шаблоните осигуряват визуално изчистени и професионално изглеждащи документи, напълно съобразени с фирмената идентичност и нуждите на потребителя.

Умна логика, базирана на данни

Разпознава индивидуални мебели, генерира чертежи и списъци автоматично.

AutoLayout.pro
SketchUp
AutoLayout.pro
SketchUp
AutoLayout.pro
SketchUp
Как AutoLayout.pro променя процеса
Спестено време

Автоматизира рутинната работа – документацията се генерира с няколко клика.

По-малко грешки

Използва данни директно от модела – елиминира пропуски и неточности.

Повече креативност

Дизайнерите се фокусират върху визията, не върху форматиране на чертежи.

SU_Hero_1

Краен разултат

Потопи се в интериора още преди да е готов.

AutoLayout.pro създава структуриран, професионален документ, който включва чертежи, спецификации, изгледи и визуализации – всичко необходимо за реализацията на проекта. Автоматично. Прецизно. Персонализирано.

Заявете демо на AutoLayout.pro

Насрочете онлайн среща в удобно за вас време и ще получите демонстрация на продукта в реален проект.

Ценови планове

Гъвкави лицензи според начина ви на работа

Starter
Individual
  • Пълен достъп до AutoLayout.pro
  • 1 работна станция
  • Готови файлови шаблони за работа
  • Обучение и въвеждане в работния процес
  • Съдействие при първоначално стартиране
  • Еднократен достъп за 1 месец
99 €/месец
Поръчай
Enterprise
Corporate
  • Пълен достъп до AutoLayout.pro
  • Минимум 2 работни станции
  • Готови файлови шаблони за работа
  • Обучение и въвеждане в работния процес
  • Съдействие при първоначално стартиране
  • Екипна поддръжка
  • Годишен лиценз (цена на станция)
29 €/месец / станция
Таксувано на годишна база (billed annually)
Поръчай

След успешна поръчка ще получите фактура. Нашият екип ще се свърже с вас и ще ви предостави код за активация, както и съдействие при първа активация на AutoLayout.pro.

Имате проект? Имаме решение.
AutoLayout.pro се адаптира към вашия стил на работа.
Свържете се с нас.

layout

    Съвместимост със следните операционни системи:

    Windows

    macOS

    Scroll to Top
    Copy link
    ×

    Заявете демо на AutoLayout.pro

    Насрочете онлайн среща в удобно за вас време и получете персонална демонстрация.






      Благодарим!

      Получихме вашата заявка.
      Ще потвърдим възможно най-скоро.